Te Huur 2 Appartement Korenbloemstraat In Utrecht

Utrecht
Korenbloemstraat
£ 1025.-
 pcm
Gas, water, electricity
excluded
Type of property
Apartment
Acceptance
Empty
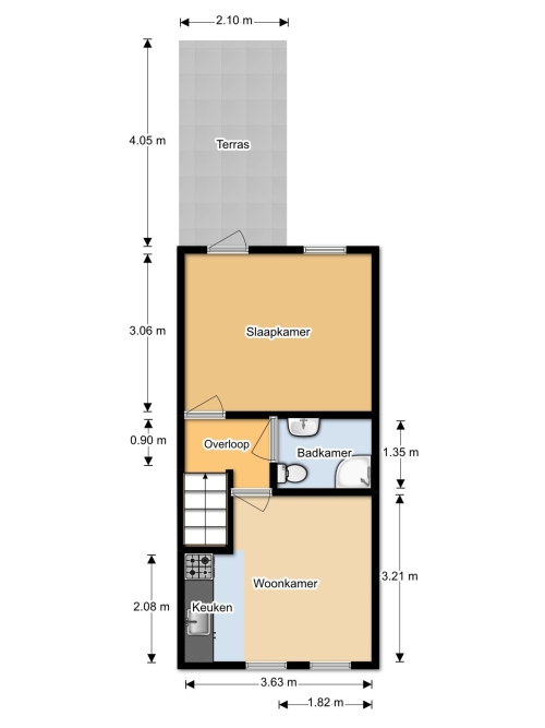
Living area
29m²
Number of rooms
2
Number of bedrooms
1
Available from
3-4-2026
Viewing from
1-4-2026
Selection date
30-3-2026
Checked on: 03-Apr-2026
Register to respond
Agency costs
No
Property
Directly from owner
Deposit
1025
Guarantee
Possible
Rent allowance
Not possible
Rental period
Indefinite period
Acceptance
Empty